Arquitecto/Architect:
Enrique Vidal Gil
Pilar de Bustos García-Salmones
Pedro Gutiérrez Alaiz
Plano de situación/Site plan

Rehabilitación de antiguo cine para Teatro Municipal. Betxí

Conversion of old cinema into Municipal Theatre. Betxí

Situación/Location:
Avda. de Joaquín Dualde, Betxi

Promotor/Developer:
Ayuntamiento de Betxí/Betxí Town Council

Empresa Constructora/Contractor:
Edycon S.A.

Colaboradores/Collaborators:
Vicente Montroy Meneu, ingeniería/engineering
Josep Ruà Blasco, señalización
/signage
Tramoia S.L. - Tuix & Ross
Valentí Piñot, actor
/actor

Aparejador/Surveyor:
Joaquín Albert Serra

Equipamiento escénico/Stage equipment:
Scenic Light

Fotógrafo/Photographer:
Jesús Morcillo Franch

 

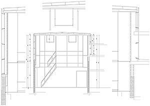
El Teatro se construye sobre el Cine Betxí, edificio emblemático en la memoria del municipio, en un solar entre medianeras y con fachada a dos calles, la avenida principal con el acceso y la calle trasera con la salida del escenario. Sólo se ha conservado parte del antiguo patio de butacas: la cimentación y los 3 muros de carga -el frontal de acceso a la sala desde el vestíbulo y los dos muros laterales-. Es más que una rehabilitación. Una obra de bajo presupuesto que ha consumido gran parte de los recursos en la nueva estructura, fachadas y cubiertas. The theatre has been built over the Cine Betxí, an iconic building in the memory of this town, in a plot between party walls with façades onto two streets: the main avenue with the main door and the street to the rear with the stage entrance. The only part that has been saved is part of the old front stalls: the foundations and the three bearing walls (the front one giving entry to the auditorium from the foyer and the two side walls). It is more than rehabilitation. In this low-budget work, the new structure, façades and roofs used up a large part of the resources. Sección transversal/Cross section

Planta baja/Ground floor

El hilo conductor del proyecto ha sido resolver, con soluciones constructivas modestas, un modelo de espacio escénico lo más versátil posible. Se efectuó un trabajo previo de documentación para definir el espacio escénico, acotando el aforo a 378 butacas y ampliando mucho el volumen del escenario. Y se decidió utilizar toda la planta primera como galería técnica, con la mesa de control en la sala y la pasarela para la iluminación frontal del escenario.

El patio de butacas es una caja de madera. La acústica se resuelve en los muros con la alternancia de tablas o enlistonado de pino teñido y tableros de DM con paños de lana de roca y el techo de la sala se quiebra en bandas de paneles sándwich de madera. La concha de la boca del escenario y la interior -desplegable para conciertos- son también de madera.

Después de un año de funcionamiento continuado, músicos y actores avalan la opinión de que la sala ofrece versatilidad técnica y muy buena acústica.

The thread running through the project was to achieve as versatile as possible a stage space using modest building solutions. The prior documentation work defined the stage space, enlarging the volume of the stage considerably and limiting the seating to 378 stalls. It was decided to use all the first floor as the technical gallery, with the lighting gangway for lighting the stage frontally and the console in the auditorium.

The front stalls are a wooden box.  For the acoustics, the walls alternate planks or strips of stained pine and MDF boards with stretches of rock wool and the auditorium ceiling is broken up into bands of wood sandwich panels. The acoustic shell of the proscenium and that of the inner stage (which can be opened for concerts) are also made of wood.

After a year in continuous operation, musicians and actors agree that the theatre is technically versatile and has very good acoustics.