|
Piscinas climatizadas y espacios deportivos complementarios. Castellón Heated swimming pools and sports and complementary facilities. Castellón
|
Arquitectos/Architects: Gad Arquitectura S.L.: Fernando Calduch Ortega, Lucas Castellet Artero, Manuel Ballester Centelles |
|
|
|
Situación/Location: Promotor/Developer: Colaborador/Collaborator: Constructor/Contractor: Arquitecto
Técnico/Technical
Architect: Ingeniero
técnico industrial/Industrial
T. engineer: Fotógrafo/Photographer: |
|
|
||

|
||
|
||
|
||
|
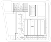
El edificio se estructura en forma de
“L” en el interior de una manzana sensiblemente cuadrada, los distintos
espacios se articulan en torno al volumen principal de la piscina que emerge
sobre el resto.
Las dependencias anexas tanto administrativas como de usos complementarios como cafetería, guardería, etc se disponen alineadas al vial oeste, ofreciendo la escala pública al entorno edificado, quedando el volumen acristalado de la piscina en un segundo plano al que se penetra a través de los filtros de los patios interiores. La fachada sur de la piscina se abre directamente a la zona de instalaciones facilitándose su mantenimiento. Las dependencias de instalaciones situadas en la planta sótano, aprovechan el desnivel natural del terreno, así su frente sur se abre hacia las pistas de paddle y la zona ajardinada, facilitando la entrada de luz natural y la iluminación, que también se potencia con los patios interiores, a modo de tragaluces. Los patios confieren iluminación natural. Los vestuarios obtienen tanto iluminación como ventilación natural de los mismos, y su ubicación, confiere la privacidad y el sosiego que el volumen de la piscina necesita. Los espacios anexos a la pisicina y de utilización propia de este uso deportivo comprende la zona de control, las aulas de aprendizaje, los espacios administrativos y de instalaciones en cuanto a los volumenes de menor altura alineado al vial y la zona de vestuarios, zonas de playa, vaso de piscina y jacuzzi en el volumen principal. La zona intermedia de un posible uso compartido entre las dependencias de piscina y la de deportes complementarios, se resuelve en el módulo con frente a la fachada norte albergando los usos de cafeteria, guardería, botiquín, vestuarios del personal, etc. En el extremo este y con la posibilidad de un acceso independiente tanto desde el exterior como desde los espacios libres de parcela y pistas exteriores, se desarrollan en planta baja y alrededor del control, las actividades de pistas interiores de squash, sala de danza, vestuarios y saunas. Bajo este volumen en el semisótano, un espacio destinado a gimnasio en una zona que por quedar abierta en sus frentes norte y sur no tendrá problema alguno de ventilación e iluminación. En cuanto a los espacios exteriores
se han mantenido en la zona este con el fin de propiciar las mejores
orientaciones, vistas y soleamiento, con unas pistas exteriores de
paddle y una zona ajardinada así como de una piscina exterior.
|
||
|
|
||
|
The building is structured in the form of an L
inside a largely square block. The various spaces revolve around the
main swimming pool block, which rises above the rest.
The adjoining annexes, both administrative and for complementary uses such as cafeteria, babysitting, etc., are lined up along the west road, presenting their public scale to the built surroundings, while the glazed swimming pool block remains in the background, reached through the filters of the inner courtyards. The south façade of the swimming pool opens directly onto the service installations area, making maintenance easier. The plant rooms are placed in the basement, making use of the natural slope of the ground, so their south face looks on to the paddle courts and the landscaped area, facilitating the entrance of natural light and illumination, which is also increased by the inner courtyards, like skylights. The courtyards provide natural light. The changing rooms obtain natural light and ventilation from them and their position gives the privacy and quiet that the swimming pool block needs. The spaces attached to the swimming pool and related to its use are the checkpoint, the training rooms, the administration spaces and the plant rooms, as regards the lower blocks aligned with the road, and the changing rooms, the poolside areas, the pool itself and the jacuzzi in the main block. The intermediate area that could be used both by the swimming pool facilities and those for other sports is laid out in the module facing the north facade, which houses the cafeteria, babysitting, first-aid post, staff changing rooms, etc. At the east end, with the possibility of independent entrance both from the exterior and from the open spaces of the site and the out door tracks, the indoor squash courts, dance studio, changing rooms and saunas are laid out on the ground floor around the checkpoint. Underneath, in a semi-basement, there is a space intended for a gym in a zone which will not have any ventilation or lighting problems, as its north and south faces are open. As for the outdoor spaces, they have been
kept to the eastern zone in order to face in the best direction, with the
best views and sunlight exposure, and comprise outdoor paddle courts and a
landscaped area as well as an outdoor swimming pool.
|
||
|
||
|
|
|
|
|
||
|
||