Reforma de local comercial para oficinas. Castellón

Conversion of commercial premises for an office. Castellón

 

 

Arquitecto/Architect:
Juan A. Juncos Martínez
Carmen Redondo Martin
Rubén Bellido Tárrega

Plano de situación/Site plan

Situación/Location:
Avda Vall Dúxó 10. Castellón

Promotor/Developer:
Calpe Invest, S.A.

Empresa Constructora/Contractor:
Construcciones Capdevila y Canos

Aparejedor/Surveyor:
Jacob Bellido Tarega

Ingeniero Industrial/Industrial engineering:
Bordanova Ingenieros & Asociados S.L.

Metalista/Metalwork:
Tamecasa S.L.

Cristaleria/Glazing:
Forcadell S.A.

Carpinteria Madera/Wood joinery:
Montañes e Hijos S.L.

Carpinteria Aluminio/Aluminium joinery:
Tarema S.L.

Pintura/Paintwork:
Fernando Bellido

Revestimientos/Facings:
Batimat S.A.

Mobiliario/Furniture:
Kontor Still

Iluminacion/Lighting:
Tecniluz SL.

Fotógrafo/Photographer:
Sonia Martínez Bellot

 

En un local comercial desarrollado en 318,05 m2 de planta baja y 183,61 m2 de entresuelo se pretende utilizar parte del espacio para desarrollar una actividad empresarial de gestión patrimonial. Se trata por lo tanto de un local de trabajo y no de pública concurrencia.

Las principales exigencias son de tipo administrativo, de archivo y de reunión con un peso importante del archivo en sus dos vertientes, muerto y vivo.

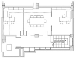
El programa planteado por la propiedad, se concretaba para la planta baja, en una zona de espera, una zona de trabajo para tres puestos, una zona de reunión-trabajo, un archivo vivo abierto, un archivo muerto cerrado, zona de copias, zona de comedor para el personal y aseos; para la planta superior se planteaba la zona representativa, con dos despachos, una sala de reunión y una zona de archivo vivo.

In commercial premises with 318.05 m2 on the ground floor and 183.61 m2 on the mezzanine, part of the space was to be used for conducting a financial management business. It would therefore be a workplace that would not expect to receive the public at large.

The main demands were administrative, filing and meeting places.  Filing was a major component from the point of view of both back and current files.

The brief that the owners had in mind for the ground floor was a waiting area, a three-station work area, a meeting/work area, open current files area, closed back files area, copying area, staff dining area and toilets; for the upper floor they suggested the management area, with two offices, a meeting room and a current files area.

To lay out this brief it was decided to use 217.92 m2 gross floor area on the ground floor and 93.60 m2 on the mezzanine, a total of 311.52 m2.

Para desarrollar este programa decidimos usar 217,92 m2 construidos en planta baja y 93,60 m2 en altillo, un total de 311,52 m2.   Planta baja/Ground floor

Sección/Section 1

Sección/Section 2

Sección/Section 3

Como principal reto teníamos que transformar un altillo de escasa altura, 2.20m, y poca iluminación, al que se accedía por una escalera convencional, en la zona representativa de la oficina. Consideramos como la mejor solución un espacio diáfano en planta baja en la que los materiales empleados ayudaran a matizar los distintos espacios, con una zona de reunión visualmente abierta y conectada con la zona de trabajo mediante una tabiquería de cristal que quedaba abierta en esquina en la situación de trabajo y cerrada para el uso de reunión, y una zona de espera vinculada a la zona representativa superior en madera de fresno; en planta superior había que engañar visualmente la poca altura del local y dotarle de luminosidad y representatividad, para ello se eligió una tabiquería de cristal con puertas de suelo a techo y una tabiquería armario en madera de fresno que ordenaba el espacio y le diera unidad con la planta de abajo. Todo el vidrio empleado estaba matizado con vinilo.

Exteriormente había que dotar al local de una imagen contundente, de local no comercial, en la que pasara desapercibido la poca altura de la planta altillo. Para esto se tomo la decisión de usar un vidrio estructural que tapara el canto de forjado y organizara la escala del local usando unos materiales nobles que apoyen la composición. Así, para el acceso, se opto por vidrio matizado con vinilo en franjas anchas para quitar publicidad al local y dar intimidad a los trabajadores, para el resto se aprovechó la necesidad de falsear las instalaciones de aire acondicionado, tomas de aire, y registro de instalaciones con un panel de acero ranurado compuesto con otro de alucobond.

The main challenge was to transform a mezzanine with little height (2.2 m) and little light, reached by a conventional stairway, into the management area of the office. We considered that the best solution on the ground floor would be an open space where the materials employed would help to distinguish the different spaces, with a visually open meeting area connected to the work area by a glass partition, open at the corner in work situations and closed during meetings, and a waiting area in ash wood connected to the management area above. On the upper floor the low height would have to be visually disguised and given luminosity and a representative quality, so glass partitions with floor-to-ceiling doors and cupboard-partitions in ash wood were chosen to organise the space and unify it with the lower floor. All the glass employed was coloured with vinyl.

Externally, as non-commercial premises the office would have to be given a striking image in which the low height of the mezzanine would go unnoticed. As a result it was decided to use a structural glass that would conceal the edge of the floor deck and to make the staircase with fine materials that would enhance the composition. For the entrance, glass coloured by broad bands of vinyl was chosen to make the office less public and give the staff more privacy.  For the rest, the need to conceal the air-conditioning, air inlets and services inspection panels was turned to advantage, using a slotted steel panel in combination with Alucobond [an aluminium sandwich panel with a polyethylene core].

Altillo/Mezanine

 

 

 

 

      

1. Cember Estuco/Cember stucco
2. Revestimiento alucobond fijación oculta/Alucobond cladding, concealed fixings
3. Revestimiento lama acero acabado kilate ferro gris acero de procolor, con bastidor metálico lateral/Steel panel cladding finished in steel grey Kilate Ferro from Procolor, with metal frame at sides
4. Carpintería no practicable aluminio fijo acabado acro, oculto exteriormente, vidrio estructural. V.3/Fixed aluminium joinery with acrylic finish concealed from the exterior, structural glass. V.3
5. Vidrio stadip butiral transparente 6+6 con puerta abatible, mecanismo tipo vidur, mateado en franjas horizontales de 2 cm hasta una altura de 1,75m, herraje en puerta con barra vertical en toda la altura e40mm/Stadip laminated security glass in transparent pvb, 6+6, with opening door, Vidur type mechanism, coloured with 2 cm horizontal strips to a height of 1.75 m, ironmongery on door includes full-height vertical bar t= 40 mm.
6. Cierre metálico automatizado, en acero inoxidable semipermeable/Automated metal shutter in semi-open stainless steel
7. Enfoscado y pintado igualando local contiguo/Rendered and painted to match adjoining premises
3.1. Con trasera oculta del mismo material/V.2/With concealed rear of the same material/V.2
3.2. Sin trasera para ventilación/V.4/Without rear for ventilation/V.4
.