|
|
Auditorio municipal. Villajoyosa Municipal concert hall. La Vila Joiosa
|
|
|
|
Situación/Location:
Arquitecto Técnico/Architectural
Technologist:
Promotor/Developer:
Colaboradores/Collaborators:
Constructora/Contractor:
Aparejador/Surveyor:
Ingeniería estructura
/Structural engineering:
Ingeniería acústica/Sound
engineering:
Fotografías/Photographs: |
|
|
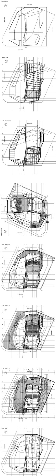
La importancia del proyecto de la Vila
Joiosa es su capacidad para construirse como un proyecto público generador
de espacio público. En efecto, el volumen de construcción al que obliga el programa de un gran auditorio es enorme. Es uno de los programas con un mayor volumen a ser insertado en la ciudad. Y es, esencialmente, un volumen horizontal. Y generalmente, a no ser que se caiga en una situación caprichosa, lo óptimo es que sea ciego para evitar todo tipo de contaminación acústica. Estas tres condiciones: su enorme volumen de construcción, su condición “muda” y su generalmente condición horizontal, hacen de este un programa que se inserta con dificultad en la ciudad. ... A menos que el mismo no genere el propio espacio urbano al que pretende pertenecer... Es como crear un círculo de arte y después entrar en él... Procedimos de ese modo para poder pensar y construir el “Auditorio”. Un auditorio es un programa principal (sala + foyer) y una serie de programas complementarios generalmente de un orden de magnitud mucho menor. Los combinamos de modo que los programas menores rodearan al programa principal, estuvieran dispuestos en ese “brazo” y por otro lado conectaran los dos extremos más alejados de la sala y foyer, como una pescadilla enroscada. se brazo genera un espacio público, un espacio descubierto, una gran plaza y permite que el acceso al auditorio sea un encuentro a través de ese espacio. Es un espacio que propone la celebración de la actividad musical o teatral al aire libre y permite tener la sensación de acceder al ámbito espacial y público del Auditorio antes incluso de su acceso propiamente dicho. Es un lugar que genera una sombra, que proyecta un círculo de sombra tanto en planta como en sección. En planta porque esa sombra construye un ámbito previo que a la vez separa y une al proyecto con la ciudad. En alzado, porque esa sombra se interpone como una capa construida que corta el volumen principal y le da una escala menor más urbana. Se crea así una profundidad que en principio el auditorio, plano y muro, lógicamente no posee. La geometría que propusimos fue una geometría que nos recordaba la de las montañas, las de las construcciones que no distinguen los planos de fachadas y de cubiertas sino que de un modo único establecen soluciones de continuidad entre los planos horizontales o inclinados, de la cubierta y los planos verticales o inclinados de las fachadas. Una única materia recorre así el edificio construyendo paredes y techos. Una pieza de plástico sostenible en su construcción desarrollo y eliminación. De ese modo el proyecto reconstruye la imagen de la montaña que vimos desde el sitio en el que ahora se sitúa el Auditorio. ![]() |
![]() |
|
|
|
||
|
What is important about the Vila Joiosa project is its capacity for construction as a public project that generates public space. The volume of construction that a major concert hall brief requires is enormous. It is one of the largest-volume briefs to be inserted into the town. Additionally, it is essentially a horizontal volume. Also, generally, with the exception of fanciful situations, it is preferably blank-walled to avoid any kind of acoustic pollution. These three conditions of enormous volume, ‘mute’ character and generally horizontal arrangement make a concert hall difficult to insert into the town. ... Unless the urban space that it proposes to belong to is its own, generated by it ... Like setting up an art circle and then joining it ... Proceeding along these lines we could think and build the “Concert hall”. A concert hall is a main brief (hall and foyer) and a series of complementary briefs, usually much smaller. We combined them so that the main brief is surrounded by the minor requirements, arranged in the ‘arm’ and connecting the furthest ends of the hall and foyer like a snake swallowing its tail. The ‘arm’ generates a public space, an open space, a great plaza, so the way into the auditorium can be a meeting across this space. It is a space that suggests holding musical or theatrical performances in the open and gives the feeling of entering the spatial and public space of the Concert Hall even before its real entrance is reached. It is a place that generates a shadow, that projects a circle of shade both on the floor plan and in section. On the floor plan because this shadow constructs a prior environment that simultaneously separates the project from the city and joins them together. In elevation because the shadow steps in like a built layer, cutting through the main block and giving it a smaller, more urban scale. This creates a depth that the concert hall, plane and wall, evidently does not possess. The geometry we proposed was one that reminded us of that of the hills and those of buildings which, while not distinguishing planes of façades and roofs, employ a single way to create breaks between the horizontal or sloping planes of the roof and the vertical or sloping planes of the façades. A single material runs through the building, constructing walls and roofs. A piece of plastic, sustainable in its construction, evolution and disposal. In this way, the project reconstructs the image of the mountain we saw from the place where the concert hall now stands. |
![]()
|
|
|
|
||
|
|
|
|
![]() |
![]() |
|
![]() |
||

|
|